Property
Beds
3
Full Baths
2
1/2 Baths
1
Year Built
2002
Sq.Footage
1,338
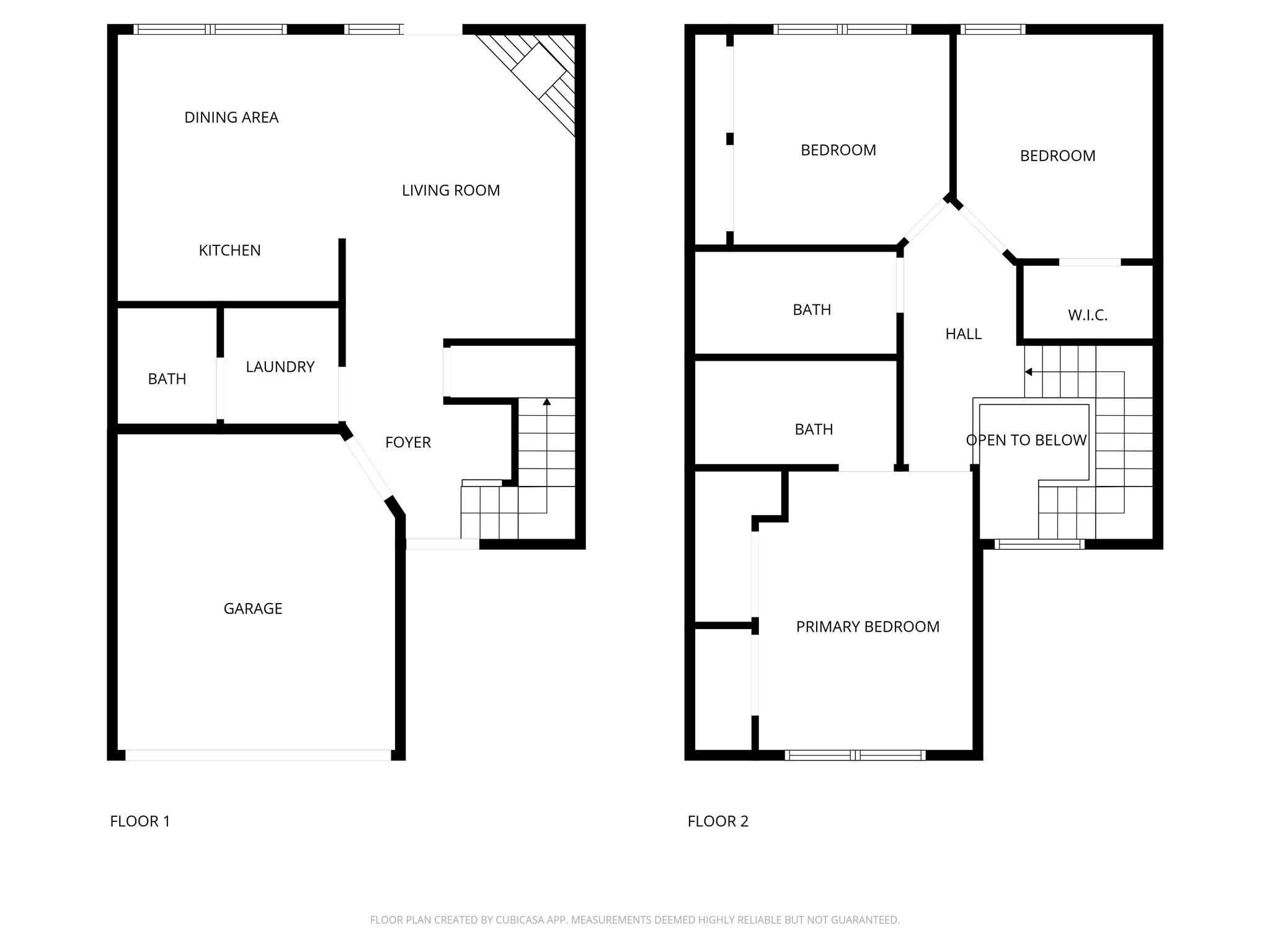
Move right in! Lock and go condo. Nestled in the rear of Covington Crossing, a very inviting & thoughtfully designed neighborhood. This unit features 3 Bedrooms and 2 and a Half Baths. Living Room has a gas Fireplace and opens to rear Patio. Ample Kitchen is an open concept with adjoining dining area. Separate Laundry room on the main. One car garage, 14.3 ft wide and 19 ft deep. Conveniently located, minutes to shopping & amenities. Nearby Biltmore Park Town Square, Lake Julian Park, NC Arboretum, the Blue Ridge Parkway. Equidistant to Asheville or Hendersonville. New Roof 2022. Come see today.
Features & Amenities
Interior
-
Total Bedrooms
3
-
Bathrooms
2
-
1/2 Bathrooms
1
-
Above Grade Finished Area
1338.0
-
Basement YN
NO
-
Cooling YN
YES
-
Cooling
Ceiling Fan(s), Central Air
-
Fireplace YN
YES
-
Heating YN
YES
-
Heating
Forced Air
-
Pet friendly
Yes
Exterior
-
Garage
Yes
-
Garage spaces
1
-
Parking
Driveway
-
Patio and Porch Features
Patio
-
Pool
No
Area & Lot
-
Property Type
Residential
-
Property Sub Type
Condominium
Price
-
Sales Price
$295,000
-
Sq. Footage
1, 338
-
Price/SqFt
$220
HOA
-
Association
Yes
-
Association Fee 2
$157
-
Association Fee
$213
-
Association Fee Frequency
Monthly
-
Association Fee 2 Frequency
Annually
-
Association Fee Includes
N/A
School District
-
Elementary School
Glen Arden/Koontz
-
Middle School
Cane Creek
-
High School
T.C. Roberson
Property Features
-
Foundation Details
Slab
-
Senior Community YN
NO
-
Sewer
Public Sewer
Schedule a Showing
Showing scheduled successfully.
Mortgage calculator
Estimate your monthly mortgage payment, including the principal and interest, property taxes, and HOA. Adjust the values to generate a more accurate rate.
Your payment
Principal and Interest:
$
Property taxes:
$
HOA fees:
$
Total loan payment:
$
Total interest amount:
$
Location
County
Buncombe
Elementary School
Glen Arden/Koontz
Middle School
Cane Creek
High School
T.C. Roberson
Listing Courtesy of Laura Flores , NextHome WNC Realty
RealHub Information is provided exclusively for consumers' personal, non-commercial use, and it may not be used for any purpose other than to identify prospective properties consumers may be interested in purchasing. All information deemed reliable but not guaranteed and should be independently verified. All properties are subject to prior sale, change or withdrawal. RealHub website owner shall not be responsible for any typographical errors, misinformation, misprints and shall be held totally harmless.
Ops Manager
Kristen Harrill
Call Kristen today to schedule a private showing.
* Listings on this website come from the FMLS IDX Compilation and may be held by brokerage firms other than the owner of this website. The listing brokerage is identified in any listing details. Information is deemed reliable but is not guaranteed. If you believe any FMLS listing contains material that infringes your copyrighted work please click here to review our DMCA policy and learn how to submit a takedown request.© 2024 FMLS.